Wyjątkowa rezydencja przy ścianie lasu – dla konesera przestrzeni, ciszy i solidnej architektury
Na sprzedaż nietuzinkowa nieruchomość w stanie surowym zamkniętym, położona w jednej z najbardziej prestiżowych lokalizacji Mysłowic – na zamkniętym osiedlu Residential Hill, w dzielnicy Morgi, przy końcu ul. Leśnej.
To dom dla kogoś z wizją – osoby, która poszukuje spokoju, bliskości natury i solidnej bazy do stworzenia swojej prywatnej oazy.
🌳 Bezpośrednie sąsiedztwo lasu, absolutna cisza, prywatność i śpiew ptaków za oknem – a jednocześnie tylko kilka minut od autostrady A4. Lokalizacja łączy to, co pozornie niemożliwe: kontakt z naturą i doskonałą komunikację z Katowicami, Tychami czy Krakowem.
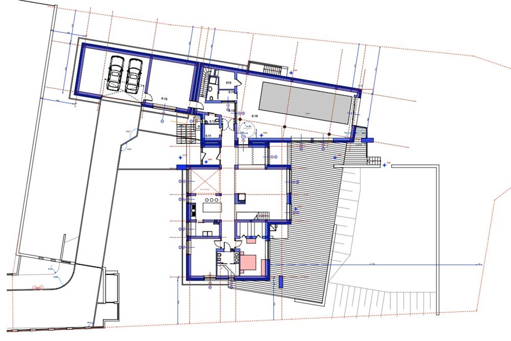
📐 Parametry nieruchomości
Powierzchnia użytkowa domu: 410,36 m²
Całkowita powierzchnia wszystkich pomieszczeń: 628 m²
Powierzchnia działki: 2 380 m²
Stan: surowy zamknięty (bardzo dobry, bez wad technicznych i prawnych)
Rok rozpoczęcia budowy: 2008
Technologia: żelbet, pustak ceramiczny LEYER, dachówka ceramiczna
💡 Dla wymagających – funkcjonalny projekt z częścią rekreacyjną i basenem
Ten dom to nie tylko przestrzeń do życia – to projekt z potencjałem rezydencji z basenem, sauną, siłownią i biblioteką. Przemyślany układ przestrzeni mieszkalnej i wypoczynkowej:
Parter – mieszkalny (163 m²)
Przestronny salon z wyjściem do ogrodu
Kuchnia ze spiżarnią
Jadalnia
Dwie sypialnie
Garderoba, łazienka, hol wejściowy, ogród zimowy
Parter – rekreacyjny (227 m²) – częściowo podpiwniczony
Część basenowa
Przestrzeń na saunę, jacuzzi
Siłownia, WC, szatnia, piwnica
Poddasze (100 m²)
Galeria
Biblioteka
Sypialnia, garderoba, pokój letni z tarasem
Łazienka
Garaż i zaplecze techniczne (140 m²)
Garaż na 2 samochody
Pomieszczenia gospodarcze i techniczne
📍 Lokalizacja – luksus ukryty w naturze
Las – za oknem
Przystanek – 250 m
Sklep, szkoła, przedszkole – 1,2 km
A4 – 1,3 km (Katowice – 14 min)
Mysłowice Centrum – 7 min
Tychy – 18 min
✅ Dlaczego warto?
✔ Nieruchomość dla osób szukających czegoś więcej niż tylko domu
✔ Solidna konstrukcja, przemyślany projekt i wyjątkowy potencjał
✔ Ściana lasu, cisza, prywatność – jak w Beskidach, ale 15 minut od Katowic
✔ Przestrzeń rekreacyjna z basenem, siłownią, sauną
✔ Możliwość wykończenia pod własne potrzeby
📞 Zadzwoń i umów się na prezentację – zobacz, jak wygląda przestrzeń z potencjałem na Twoją wymarzoną rezydencję.
📝 Kupujący nie płaci prowizji – całość kosztów pośrednictwa pokrywa właściciel.