Budynek mieszkalny jednorodzinny w zabudowie bliźniaczej (2 POŁÓWKI BLIŹNIAKA)
Wykonany według projektu ARCHON "Dom w Zimokwiatach 2"
Planowany termin zakończenia inwestycji (stan deweloperski) - II kwartał 2026r.
Lokalizacja: Łodygowice, ul. Ceramiczna działka nr 6629/2
Bliźniak posadowiony jest na działce o powierzchni 1000 m2
_________________
W SKŁAD BUDYNKU WCHODZI DOM "A" ORAZ DOM "B"
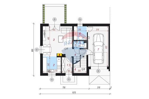
DOM "A" :
Liczba poziomów - 2 (parter i piętro)
Powierzchnia podłóg - 129,75 m²
Powierzchnia całkowita - 168,65 m²
Powierzchnia działki - 500 m²
__________________________________
PARTER:
- kuchnia z jadalnią
- salon z kominkiem i z wyjściem na taras
- toaleta
- wiatrołap
- pom. gospodarcze
- garaż
PODDASZE :
- sypialnia z garderobą
- sypialnia
- sypialnia
- łazienka
- pralnia
MEDIA:
- woda
- prąd
- kanalizacja
- gaz
- internet
***********************
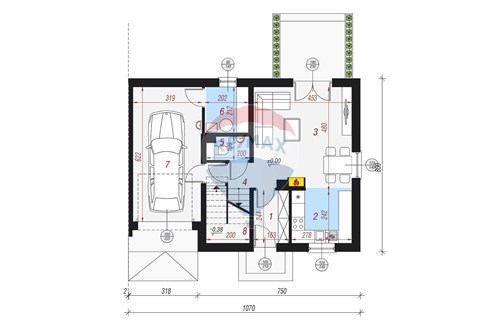
DOM "B" :
Liczba poziomów - 2 (parter i piętro)
Powierzchnia podłóg - 129,75 m²
Powierzchnia całkowita - 168,65 m²
Powierzchnia działki - 500 m²
__________________________________
PARTER:
- kuchnia z jadalnią
- salon z kominkiem i z wyjściem na taras
- toaleta
- wiatrołap
- pom. gospodarcze
- garaż
PODDASZE :
- sypialnia z garderobą
- sypialnia
- sypialnia
- łazienka
- pralnia
MEDIA:
- woda
- prąd
- kanalizacja
- gaz
- internet
***********************
Atutem nieruchomości bez wątpienia są piękne widoki, zielona i spokojna okolica, mnóstwo terenów na wyprawy piesze i rowerowe, świetna baza na wypady w góry jak również nad wodę.
Bliskość drogi ekspresowej S1 w kierunku - Bielsko-Biała / Żywiec - zapewnia sprawną komunikację w każdym kierunku.
_________________________________________________________________________________________
Nowoczesny dom z poddaszem użytkowym do zabudowy bliźniaczej.
- Strefa relaksu na tarasie, gdzie pod drewnianą pergolą przewidziano miejsce na kącik kawowy oraz ogrodowe meble wypoczynkowe.
- Część dzienna na parterze to wygodny salon, jadalnia oraz otwarta kuchnia. Kominek zapewnia dodatkowe źródło ciepła oraz wprowadza przytulny nastrój.
- Przestrzeń kuchni została bardzo funkcjonalnie zorganizowana, optymalne warunki do przyrządzania posiłków gwarantują obszerne blaty robocze.
- Przestrzeń dzienną uzupełnia toaleta, a przez wiatrołap domownicy mają możliwość przejścia do jednostanowiskowego garażu i gazowej kotłowni.
* Do części nocnej domu prowadzą naturalnie doświetlone, dwubiegowe schody.
- Znajdują się tutaj trzy sypialnie
- W pokojach dzieci przewidziano miejsce na szafy ubraniowe, a perzy sypialnie rodziców wyodrębniono praktyczną garderobę.
- Dodatkowe szafy do przechowywania można zamontować w holu.
- Wyjątkowy komfort oferuje duża łazienka, możemy w niej zastosować bogate wyposażenie wraz z zestawem umywalek.
- Znajdująca się na osi schodów pralnia ułatwi zorganizowanie domowych prac, posiada także miejsce do suszenia.
_________________________________________________________________________________________
Zainteresowanych zapraszamy do kontaktu w celu uzyskania dodatkowych informacji oraz umówienia się na prezentację nieruchomości.
KUPUJĄCY NIE PŁACI PROWIZJI
Agent nieruchomości zainteresowany tą ofertą dla swojego klienta proszony jest o kontakt. Chętnie uzgodnimy warunki współpracy z RE/MAX przy sprzedaży.
Nota prawna: Informacje dotyczące opisu nieruchomości podane są przez właściciela, mają charakter wyłącznie informacyjny i mogą podlegać aktualizacji. Oferta dotycząca nieruchomości stanowi zaproszenie do rokowań zgodnie z art. 71 Kodeksu Cywilnego i nie stanowi oferty określonej w art. 66 i następnych KC.