Przestronny parterowy dom na sprzedaż w Dębowcu -idealna lokalizacja blisko Cieszyna! 🌟
Jeśli marzysz o komfortowym domu w malowniczej okolicy, ta oferta jest dla Ciebie!
Znajdujący się przy ulicy Rajskiej, przestronny parterowy dom z pełnym podpiwniczeniem to propozycja dla tych, którzy cenią sobie spokój i nowoczesne rozwiązania w jednym.
Dom zagospodarowany i z wykończoną powierzchnią parteru i piwnic.
Wyposażenie wewnątrz w wysokim standardzie.
Do zrobienia elewacja, bruki i ogród.
Cechy nieruchomości:
- Powierzchnia użytkowa parteru: 145.32 m²
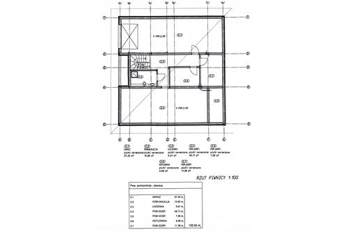
- Powierzchnia piwnicy: 153.93 m²
- Powierzchnia całkowita: 385.9 m²
Parter: Dom wkończony, nowy ,wnętrza dokładnie takie, jakiego pragniesz. Budowany z dużą dbałością o wysoką jakość i funkcjonalność.
wiatrołap 5.52 m
komunikacja 16.90 m
pokój 14.55 m
kuchnia 17.48 m
pokój dzienny 31.54 m
wc 3.53m
pom. gosp. 5.72 m
pokój 11.49m
pokój z garderobą. 17.18m
pokój 10.83m
łazienka 10.58m
Piwnica: Wykończona z myślą o Twojej wygodzie, oferuje:
- Salon z aneksem kuchennym idealne miejsce na spotkania z bliskimi.
- Łazienka funkcjonalność i wygoda.
- Pomieszczenia gospodarcze doskonałe do przechowywania lub jako dodatkowe miejsca do pracy.
garaż 57.33m
komunikacja 13.95m
łazienka 5.91m
pom. gosp.( ala salon z aneksem kuchennym) 48.71m
pom.gosp. 7.58m
kotłownia 9.06m
pom gosp 11.39m
Nowoczesne wyposażenie i udogodnienia:
- Pompa ciepła Panasonic 12 kW oszczędność i ekologia.
- Oczyszczalnia mechaniczna dbasz o środowisko każdego dnia.
- Rekuperacja świeże powietrze przez cały rok.
- Dachówka ceramiczna Roben Monza Plus Antracyt elegancja i trwałość.
- Drzwi bezfugowe Erkado w piwnicy i nowoczesne okna Veka bezpieczeństwo i styl.
- Ocieplenie styropianem 20 cm komfort termiczny o każdej porze roku.
- Rolety zewnętrzne na wszystkich oknach prywatność i ochrona przed słońcem.
-Przygotowana instalacja pod: domofon, monitoring, fotowoltaikę.
-Okna Veka aluminiowe HST+fix
-Drzwi wejściowe aluminiowe
-Panele winylowe Quick Step -podkład +podłoga
Dlaczego warto wybrać ten dom?
To nieruchomość stworzona z myślą o najwyższym komforcie i bezpieczeństwie, wykorzystująca najnowsze technologie budowlane. To nie tylko dom, to przestrzeń, która może stać się Twoim wymarzonym miejscem do życia! Dom budowany przez indywidualnego inwestora dla siebie.
Zainteresowany?
Nie zwlekaj!
Skontaktuj się z nami już dziś, aby umówić się na oglądanie tej wyjątkowej oferty.
To szansa na zakup domu zbudowanego z pasją i dbałością o każdy szczegół!
OFERTA WYŁĄCZNOŚCIOWA!
Agent nieruchomości zainteresowany tą ofertą dla swojego klienta proszony jest o kontakt. Chętnie uzgodnimy warunki współpracy z RE/MAX przy sprzedaży.
WYNAGRODZENIE BIURA POKRYWA TYLKO WŁAŚCICIEL NIERUCHOMOŚCI
Nota prawna: Informacje dotyczące opisu nieruchomości podane są przez właściciela, mają charakter wyłącznie informacyjny i mogą podlegać aktualizacji. Oferta dotycząca nieruchomości stanowi zaproszenie do rokowań zgodnie z art. 71 Kodeksu Cywilnego i nie stanowi oferty określonej w art. 66 i następnych KC.