Czterokondygnacyjny budynek z ogromnym potencjałem
Międzybrodzie Bialskie, 4 kondygnacje - 1000 m², 1600 m² działki
Oferta dla:
🏨 Inwestorów z branży hotelowej / pensjonatowej
Obiekt blisko Jeziora Żywieckiego, idealny pod pensjonat lub apartamenty na wynajem.
Oferta przeznaczona dla:
🧱 Deweloperów lokalnych lub inwestorów indywidualnych
Możliwość podziału budynku na kilka mieszkań lub mikroapartamentów.
🏢 Firm szukających własnej siedziby z zapleczem biurowo-magazynowym
Duża powierzchnia użytkowa, winda towarowa, zaplecze socjalne i techniczne.
🤝 Fundacji, organizacji społecznych i domów opieki
Spokojna lokalizacja, infrastruktura sprzyjająca działalności prospołecznej.
Na sprzedaż nieruchomość o ogromnym potencjale inwestycyjnym, położona w malowniczej miejscowości Międzybrodzie Bialskie (gm. Czernichów), zaledwie 20 minut od Bielska-Białej i spacerem 5 minut od Jeziora Żywieckiego.
🧱 Szczegóły nieruchomości:
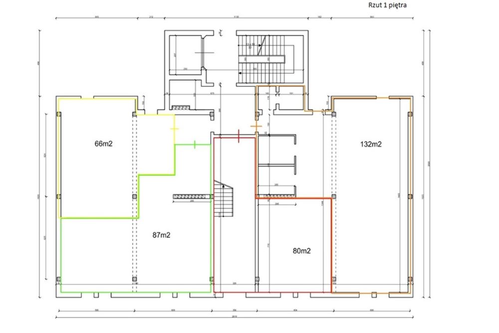
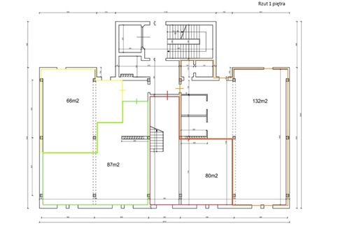
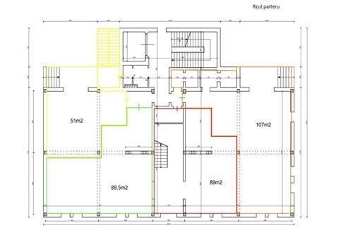
Powierzchnia całkowita budynku: 1330 m²
Powierzchnia użytkowa: ok. 1000 m²
Działka: 1600 m² (użytkowanie wieczyste)
Kubatura: 4 kondygnacje (piwnica, parter, piętro, poddasze)
Dwa mieszkania na poddaszu (118 m² i 162 m²)
Winda towarowa (1,6 t), dwie klatki schodowe
🏗️ Stan techniczny:
Solidna konstrukcja żelbetowo-ceglana, dach z blachy trapezowej, pełne uzbrojenie w media (prąd, gaz, kanalizacja, woda miejska).
📜 MPZP teren usług publicznych (MB38/U):
Możliwość adaptacji na pensjonat, dom opieki, siedzibę firmy, apartamenty na wynajem lub działalność usługową (handel, gastronomia, administracja, edukacja).
📍 Lokalizacja:
Jezioro Żywieckie pieszo 5 min
Szczyrk 25 min
Bielsko-Biała 20 min
Żywiec 18 min
0% prowizji - Kupujący nie płaci prowizji dla biura!