Na sprzedaż nieruchomość o przeznaczeniu usługowym - dwie kondygnacje ( parter, podpiwniczenie/garaż podziemny) w wolnostojącym budynku wybudowanym w 2020r.
Nieruchomość (na dwóch kondygnacjach) o łącznej powierzchni 325,39 m².
Parter - 235,39m2
Kondygnacja podziemna - 90 m2
Do tego 6 miejsc na parkingu zewnętrznym .
Teren ogrodzony, z ładnym widokiem na las.
-Idealny lokal do przerobienia na hostel lub dowolny biznes (pokoje z antresolami -patrz wysokość lokalu).
- estetyczny budynek na uboczu, na górze nad lokalem kilkanaście lokali mieszkalnych
- aktualnie brak konieczności uzgodnień ze wspólnotą mieszkaniową (zarząd nieruchomością wspólną)
- wysokość kondygnacji - parter 4 m, piwnica/garaż 3 m
- grube stropy i posadzki z udźwigiem wystarczającym dla ustawienia samochodów albo sprzętu medycznego (np. tomograf)
- aktualnie lokal podzielony ściankami działowymi i częściowo wynajęty na różne biznesy z generowanym przychodem około 10 000 zł/m-c
- powierzchnia niezagospodarowana/niewynajęta - około 90 m²
Umowy z najemcami na terminy nie dłuższe niż rok - zawarte bez formy notarialnej, niektóre z 777 k.p.c. co do płatności i opróżnienia
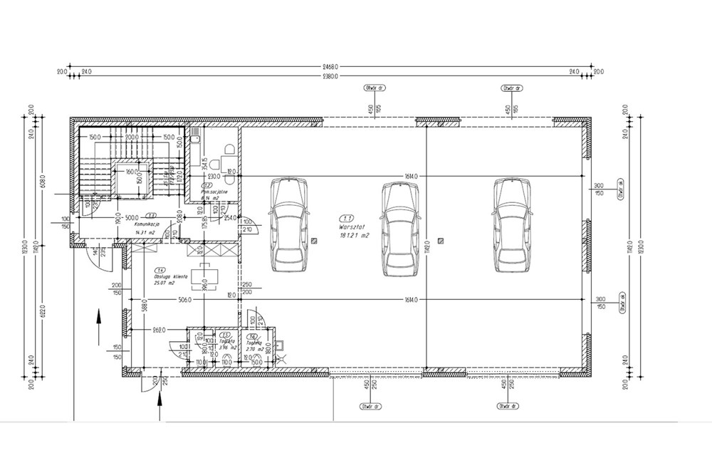
Na rzucie parteru koncepcja pod salon/warsztat. Aktualnie lokal podzielony na mniejsze ściankami z silikatu. Powierzchnia na kondygnacji podziemnej zaznaczona na pomarańczowo.
Roczny podatek: około 5400 zł
Miesięczny czynsz administracyjny bez mediów - około 450 zł, z ogrzewaniem około 1000 zł.
Media: Prąd, Gaz, woda z ujęcia własnego, szambo. Kanalizacja i podłączenie do sieci miejskiej w trakcie.
Lokalizacja: Warszawa Wesoła - ul. Piłsudskiego 6
W okolicy (ok. 200-300 m) pasaż usług, dyskonty , klub fitness , stacja paliw , gastronomia sieciowa .
Lokal położony przy ruchliwej drodze lokalnej
Nieruchomość sprzedawana przez osobę fizyczną bez podatku VAT (podana cena netto = brutto)