Na sprzedaż parterowy dom w stanie deweloperskim o pow. całk. 106.24 m², położony w dzielnicy Łódź-Widzew osiedle Feliksin. Działka o powierzchni 3 490 m2, z wjazdem bezpośrednio przy ul. Gminnej. To co jest bardzo ważne to zatwierdzony MPZP, a mianowicie 2RN-ZN (teren rolnictwa z zakazem rozbudowy lub teren zieleni naturalnej) oraz 4L (teren lasu). Oznacza to, że żadne nowe domy w okolicy nie mogą zostać wybudowane.
Natomiast dla zabudowy istniejącej:
dopuszczenie rozbudowy i nadbudowy na następujących warunkach:
- powierzchnia zabudowy dla budynków: mieszkalnych - maksimum 150 m2, gospodarczych i garaży w zabudowie mieszkaniowej jednorodzinnej - maksimum 50 m2,
- wysokość zabudowy dla budynków: mieszkalnych - maksimum 10,5 m, gospodarczych i garaży w zabudowie mieszkaniowej jednorodzinnej - maksimum 4,5 m.
Oferta ekskluzywna - całość wynagrodzenia biura pokrywa wyłącznie sprzedający.
Wybudowany metodą tradycyjną, ściany zewnętrzne cegła MAX, w projekcie przewidziano docieplenie 10 cm styropianem, ściany działowe murowane, dach pokryty papą. Ekspozycja okien na cztery strony świata. Wszystkie okna PCV dwuszybowe. Drzwi wejściowe stalowe. W budynku przyłączona i rozprowadzona została energia i siła (przewody aluminiowe V32) oraz rozprowadzona została instalacja wodno-kanalizacyjna i ogrzewanie. Dziennik budowy uzupełniany na bieżąco od 2012 do 2023 r.
W projekcie przewidziano studnię głębinową o wydajności 5 m3/db wraz z instalacją zasilającą budynek w wodę, przydomową oczyszczalnię ścieków o przepustowości do 5 m3. Dokonano 2 odwiertów na głębokości 3.00 m2. Cena projektu zapewnia również darmowe wprowadzania zmian w projekcie.
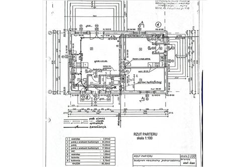
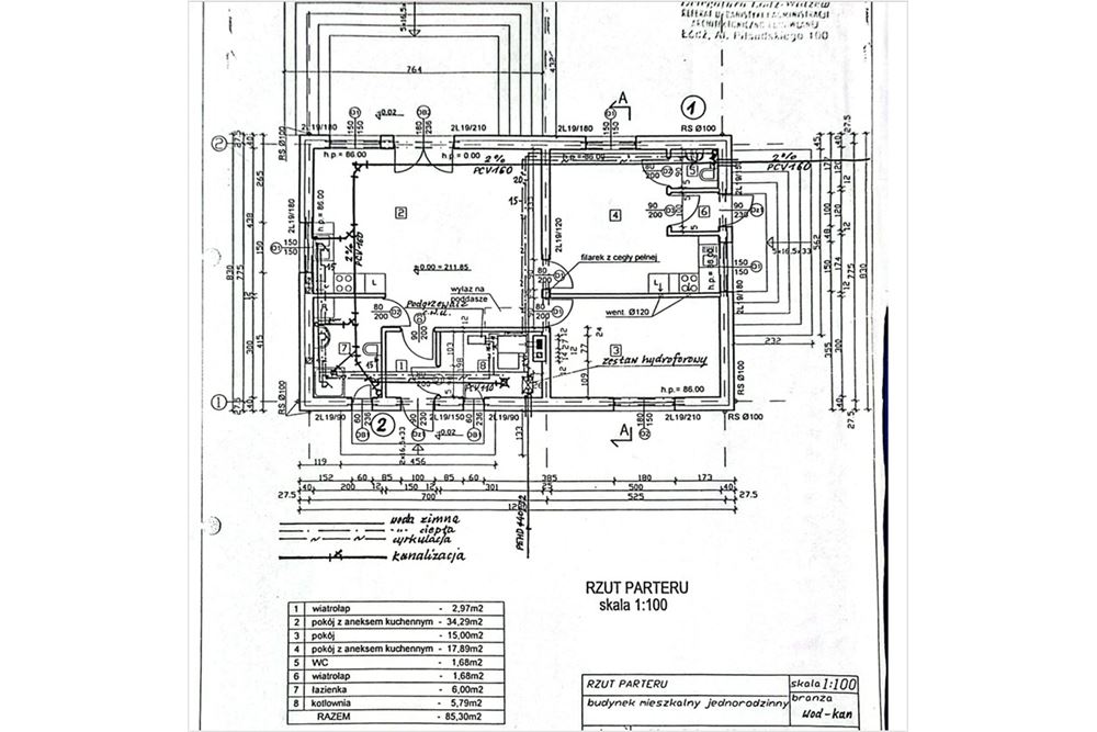
Drzwi wejściowe prowadzą do wiatrołapu o pow. 2.97 m2, z którego po prawej stronie jest wejście do kotłowni/pomieszczenia gospodarczego (pow. 5.79 m2), a na wprost do widnego pokoju dziennego z aneksem kuchennym o pow. 34.29 m². Wystawa okien Wsch.-Płd. Od strony południowej zamontowano drzwi tarasowe. Po lewej stronie od wejścia usytuowano łazienkę z toaletą o pow. 6 m2, a po prawej mniejszą sypialnię (15 m2) z wystawą okien na Płn., a kolejne pomieszczenie to zg. z zamysłem Właściciela jest to pokój o pow. 17.89 m2, w którym zainstalowano podłączenia niezbędne do zabudowy aneksu kuchennego, osobną toaletą (1.68 m2) oraz wiatrołap (1.68 m2), który prowadzi do drugiego, osobnego wyjścia z domu. Nowy Właściciel może zmienić funkcję pomieszczenia na dużą sypialnię z łazienką.
Szukasz niedużego domu w spokojnej okolicy, a jednocześnie blisko miasta i autostrady? Ten dom w stanie deweloperskim to idealna propozycja dla par, rodzin i osób marzących o własnych czterech kątach.
✅ 106 m² powierzchni do wykończenia według własnego gustu
✅ Duża działka 3490 m² z MPZP brak możliwości budowy kolejnych domów
✅ Bliskość miasta i szybki dojazd do A1
✅ Nieliczne domy w okolicy, otoczenie zieleni i spokoju
Własny dom w Feliksinie to nie tylko inwestycja to Twój komfort, przestrzeń w zasięgu miasta.
Zapraszam do zapoznania się z ofertą.
📞 Zadzwoń i umów się na prezentację już dziś!