![]()
Osiedle Mamre luksusowe domy nad jeziorem, 4 km od plaż Bałtyku
Szukasz wyjątkowego miejsca, gdzie domy nad jeziorem łączą luksus z naturą? Osiedle Mamre to kameralna enklawa 16 ekskluzywnych domów drewnianych w Kołczewie, położonych tuż nad jeziorem, w otoczeniu Wolińskiego Parku Narodowego. Każdy dom nad jeziorem został zaprojektowany, by zapewnić maksymalny komfort, prywatność oraz niepowtarzalny widok na wodę.
To idealne miejsce zarówno na dom całoroczny, jak i second home prywatną oazę spokoju, gdzie można uciec od miejskiego zgiełku i cieszyć się bliskością natury. Domy na Osiedlu Mamre to również atrakcyjna lokata kapitału luksusowe nieruchomości w tej unikalnej lokalizacji zyskują na wartości i mogą, jeśli właściciel zechce, generować dochód z wynajmu. To propozycja dla tych, którzy marzą o własnym miejscu nad jeziorem, w pobliżu morza, a jednocześnie szukają opłacalnej inwestycji.
Lokalizacja domy nad jeziorem w Kołczewie, gm. Wolin:
Zaledwie 4 km od Morza Bałtyckiego łatwy dostęp do szerokich, piaszczystych plaż.
Otoczenie Wolińskiego Parku Narodowego cisza, świeże powietrze, bogactwo przyrody.
Amber Baltic Golf Club 2 km prestiżowe pole golfowe dla miłośników aktywnego wypoczynku.
Bliskość nadmorskich miejscowości i kurortów:
Międzyzdroje 14 km
Świnoujście 34 km
Heringsdorf 45 km
Międzywodzie 8 km
Dziwnów 14 km
Kamień Pomorski 24 km
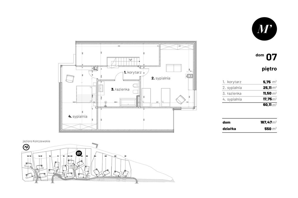
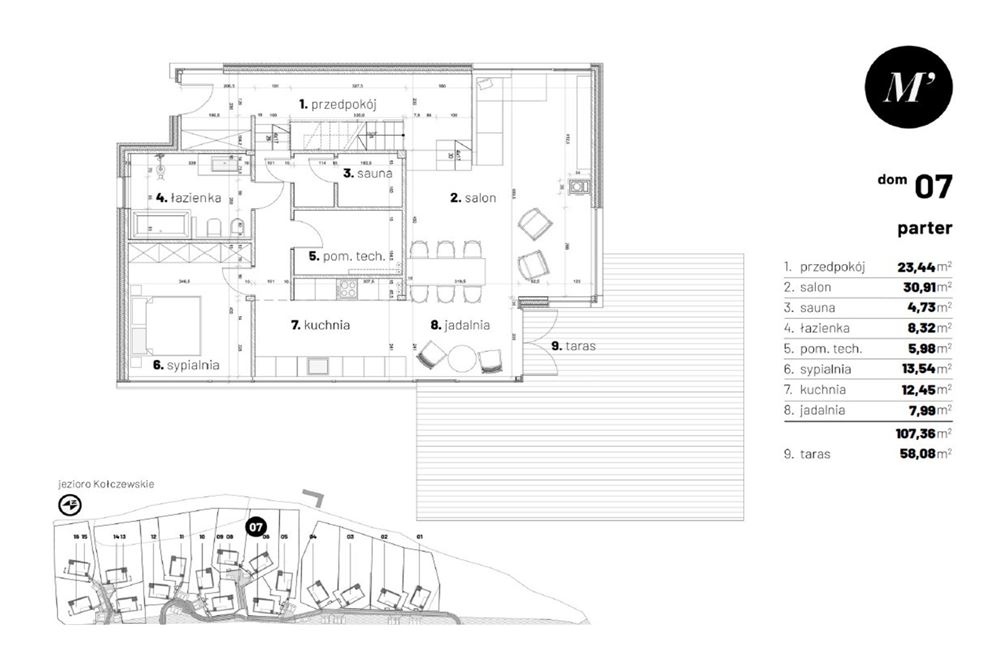
DOM NR 7 luksusowy dom nad jeziorem
Powierzchnia użytkowa: 167,47 m²
Powierzchnia całkowita: ok. 178 m²
Powierzchnia działki: 550 m²
Powierzchnia tarasu: 58 m²
Dom nr 7 to przestronny, luksusowy dom nad jeziorem, z dużymi przeszkleniami otwierającymi wnętrze na malowniczy krajobraz. Naturalne materiały: drewno HBE, marmur Atlantic Grey i kamień podkreślają wyjątkowy charakter wnętrza i harmonijnie współgrają z otoczeniem.
Standard premium luksusowy dom nad jeziorem:
Drewno klejone HBE ekologiczna i energooszczędna technologia budowy
Pompa ciepła Daikin Altherma 3 ogrzewanie, chłodzenie i oczyszczanie powietrza
Fotowoltaika ekologiczne, zrównoważone źródło energii
Kominek Spartherm Premium A ciepło i wyjątkowy klimat
Podłogi: marmur Atlantic Grey na parterze, dębowa podłoga na piętrze
Dębowe schody i drzwi z ukrytą ościeżnicą
Kuchnia z kamiennymi blatami, sprzęty SMEG
Sauna sucha fińska relaks w zaciszu własnego domu
Łazienki z armaturą Bongio
Osiedle Mamre Twoje luksusowe miejsce nad jeziorem
Wszystkie domy skierowane w stronę jeziora niepowtarzalne widoki
Zamknięty, monitorowany teren bezpieczeństwo i prywatność
Prywatna plaża i dwa pomosty idealne na relaks i wodne aktywności
Dwa miejsca postojowe oraz parking dla gości
Boks rowerowy dla miłośników aktywnego stylu życia
W ofercie zostały ostatnie domy. To ostatnia szansa na zakup ekskluzywnego domu nad jeziorem na Osiedlu Mamre.
Chcesz zobaczyć luksusowy dom nad jeziorem na żywo? Odwiedź dom pokazowy na Osiedlu Mamre i przekonaj się, jak wygląda komfort, jakość i harmonia w tej wyjątkowej lokalizacji. Projekt domu to dzieło architekta Marcina Sadowskiego, a aranżacja wnętrz to połączenie elegancji i funkcjonalności autorstwa Hanny Włodarczyk i Agaty Pleśniarowicz.
Umów się na prezentację i odkryj Osiedle Mamre luksusowe domy nad jeziorem, blisko Morza Bałtyckiego!
Podana cena jest ceną brutto i zawiera 8% VAT.
W podaną cenę wliczone są:
- udział w drodze wewnętrznej w cenie 1 000 zł brutto (23%VAT)
- udział w terenie rekreacyjnym w cenie 3 000 zł brutto (23%VAT)
Dodatkowo każdy ze współwłaścicieli stanie się udziałowcem w Spółce zarządzającej osiedlem- co wiąże się z obligatoryjną opłatą 350 zł na udział w Spółce oraz będzie ponosił od dnia odbioru domu koszty związane z utrzymaniem nieruchomości wspólnej.
Podana cena jest ceną brutto i zawiera 8% VAT.
W podaną cenę wliczone są:
- udział w drodze wewnętrznej w cenie 1 000 zł brutto (23%VAT)
- udział w terenie rekreacyjnym w cenie 3 000 zł brutto (23%VAT)
Dodatkowo każdy ze współwłaścicieli stanie się udziałowcem w Spółce zarządzającej osiedlem- co wiąże się z obligatoryjną opłatą 350 zł na udział w Spółce oraz będzie ponosił od dnia odbioru domu koszty związane z utrzymaniem nieruchomości wspólnej.