Własny APARTAMENT W GÓRACH, który NA CIEBIE PRACUJE?
Apartament w Radisson Hotel z widokiem na Karkonosze generuje Ci dochód do 2035 roku, a Ty korzystasz z darmowych wakacji w górach i nad morzem w Polsce! Zero stresu tylko zysk i relaks w SPA.
1. Lokalizacja premium:
Nowy hotel Radisson w Szklarskiej Porębie (ocena 9,4/10 na Booking!)
50 m do lasu, 9 minut do punktu widokowego "Złoty Widok".
Panorama Gór Izerskich i Karkonoszy z tarasu (ekspozycja zachodnia!).
2. Dochód bez wysiłku:
Apartament w pełni umeblowany i zarządzany przez operatora (własna KW apartamentu)
Najem do 2035 r. zero Twojego zaangażowania! Później możliwość przedłużenia umowy
3. Ekskluzywne benefity dla Ciebie:
pobyty właścicielskie darmowe w hotelach sieci (★★★★★Marine Hotel Kołobrzeg, Ultra Marine Kołobrzeg, Cristal Resort Szklarska Poręba, Boulevard Ustronie Morskie, ★★★★★ Diune Hotel Kołobrzeg, Diune Resort, Baltic Park Molo Apartments, ★★★★★ Radisson Blu Resort Świnoujście, Baltic Park Fort Świnoujście, Forest Park Resort & SPA, Świeradów-Zdrój i inne)
zniżki na SPA, restauracje i zabiegi kosmetyczne w całej sieci.
PEŁNE WYPOSAŻENIE HOTELU:
Strefa Wellness: basen z zjeżdżalnią, aquapark, sauny (fińska, ziołowa, infrared), jacuzzi na zewnątrz.
Gastronomia: elegancka restauracja Spice & Herb (polskie wina!), lobby bar.
Aktywnie: całodobowa siłownia, wypożyczalnia rowerów, sala zabaw dla dzieci.
Design: klimat górskiego loftu (narty nad łóżkiem, drewno, kamień).
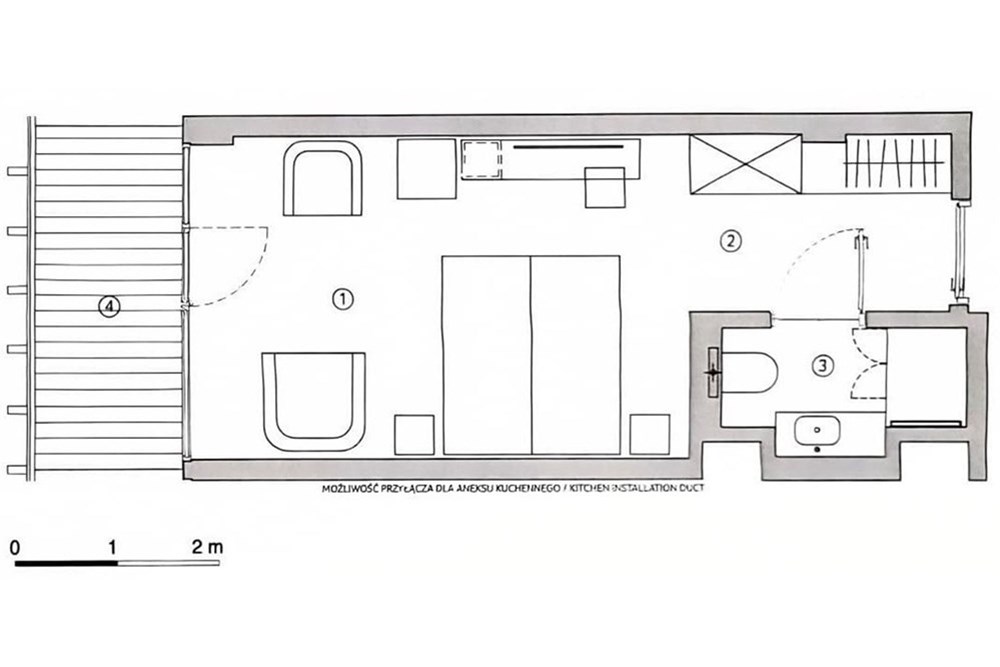
PARAMETRY TECHNICZNE:
Powierzchnia: 24,70 m² + taras 5,20 m² (parter, łatwy dostęp!).
Ekspozycja: zachód
Wyposażenie: szybkie Wi-Fi, telewizor, minibar, zestaw kawowy.
Cena brutto - obowiązuje PCC (2%).
Dla inwestora: pełna dokumentacja, umowa najmu, historia dochodów.
Nie czekaj takie oferty znikają szybko !