Mieszkanie w samym centrum Warszawy, obok Varso Tower, blisko Dworca Centralnego
Idealne dla 1 osoby albo pary
Najem tylko na umowę najmu okazjonalnego. Umowa na minimum 12 miesięcy.
Mieszkanie bedzie wolne od 30 pażdziernika.
Klimatyczne mieszkanie w kamienicy z lat 50-tych o powierzchni 34,57 m²
3 piętro w budynku z windą
Okna mieszkania wychodzą na ciche podwórko z zielenią, co zapewnia spokój w samym sercu miasta
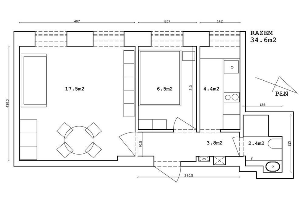
ROZKŁAD:
Salon 17,5 mkw i sypialnia 6,5 mkw
Widna, oddzielna kuchnia 4,4 mkw
Łazienka z prysznicem 2,4 mkw
Przedpokój 3,8 mkw
LOKALIZACJA:
Lokalizacja czyni to mieszkanie doskonałą propozycją dla miłośników życia w centrum miasta.
Blisko do Dworca Centralnego i stacji metra. Kilka minut do Złotych Tarasów. Dostępne w pobliskiej okolicy kawiarnie, restauracje, sklepy.
WARUNKI NAJMU:
Czynsz najmu 3000 zł miesięcznie
Czynsz do wspólnoty: 674,41 zł /m-c [ w tym zaliczki na wodę na 1 osobę]
Prąd i gaz wg zużycia
Umowa najmu okazjonalego na min 12 miesięcy
Kaucja 4000 zł
Zgoda na małego psa przy wyższej kaucji i OC najemcy
Zapraszam zainteresowanych do kontaktu!
Najemca nie płaci wynagrodzenia dla RE/MAX przy tej transakcji.
Certyfikat charakterystyki energetycznej
Wskaźnik rocznego zapotrzebowania na energię użytkową EU 66.26 kWh/m2 · rok
Wskaźnik rocznego zapotrzebowania na energię końcową EK 92.96 kWh/m2 · rok
Wskaźnik rocznego zapotrzebowania na nieodnawialną energię pierwotną EP 71.83 kWh/m2 · rok
Jednostkowa wielkość emisji CO2 E CO2 0.03 t CO2/m2 · rok
Udział odnawialnych źródeł energii w rocznym zapotrzebowaniu na energię końcową U OZE 0.00 %