Na sprzedaż budynek handlowo-usługowy o powierzchni użytkowej 141 m², położony na działkach o łącznej powierzchni 1998 m² w centrum Malechowa.
Lokalizacja
Nieruchomość usytuowana jest w samym sercu Malechowa, co zapewnia duży ruch pieszych i samochodowy.
W pobliżu znajdują się: Urząd Gminy, bank, poczta, apteka, restauracja, ośrodek zdrowia oraz przystanek PKS.
Usytuowanie w bezpośredniej bliskości przystanku daje gwarancję świetnej widoczności i dostępu klientów.
Charakterystyka nieruchomości
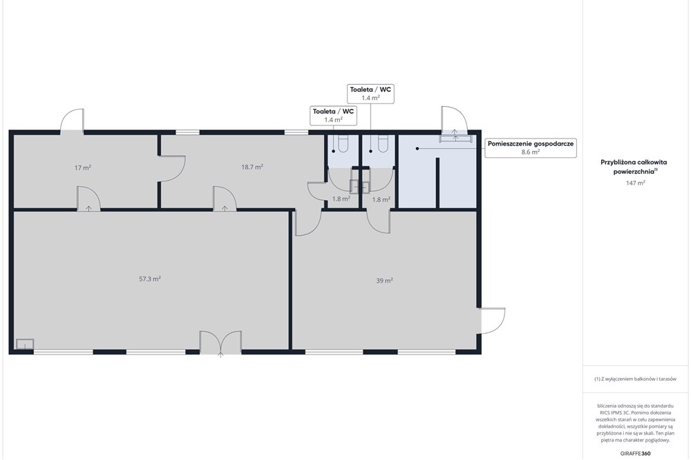
Powierzchnia użytkowa budynku: 141 m²
Powierzchnia działek: 1998 m² (nr 173/2, 177/4, 490/8).
MPZP
1.9.KS parking dla pojazdów samochodowych
1.10.UH teren usługowo-handlowy
Możliwość rozbudowy i nadbudowy: można zwiększyć budynek do dwóch kondygnacji lub rozwinąć inwestycję na działce obok
Rok remontu: 2010
Stan techniczny: dobry, do odświeżenia (malowanie wnętrz i elewacji)
Rodzaj budynku: wolnostojący
Elewacja: ocieplony
Media: prąd, gaz, woda
Droga dojazdowa: utwardzona, publiczna
Rozkład: dwa lokale z niezależnymi wejściami i przejściem między nimi, dwie łazienki
Możliwości inwestycyjne
Lokal idealny pod:
-sklep sieciowy, piekarnię, warzywniak
-punkt usługowy lub biurowy
-paczkomaty, billboardy, tablice reklamowe, stojaki promocyjne
-parking płatny lub miejsca postojowe.
Dzięki położeniu przy ruchliwej trasie i przystanku PKS to miejsce gwarantuje maksymalną widoczność i rewelacyjną dostępność dla klientów.
Dlaczego warto
- świetna lokalizacja w centrum Malechowa
- możliwość rozbudowy i zwiększenia potencjału inwestycji
- doskonała ekspozycja: idealna pod działalność usługową i handlową
- budynek w dobrym stanie, gotowy do użytkowania
- pełne uzbrojenie i wygodny dojazd.
To idealna propozycja dla inwestora lub przedsiębiorcy, który szuka funkcjonalnego obiektu z potencjałem rozwoju w bardzo dobrze skomunikowanym miejscu
Zapraszam do kontaktu!