Poszukujesz działki budowlanej a ważnym elementem jest przestrzeń i zieleń?
Zależy Ci aby wszelka infrastruktura była na miejscu lub w niedalekiej odległości?
A może poszukujesz działki pod inwestycję - gdzie z czasem i budową sąsiednich domów jednorodzinnych grunt zyska na wartości?
Zapraszam Cię do działki w Siedlcu, miejscowości zlokalizowanej 6 minut od Krzeszowic, zapraszam Cię do miejsca z widokiem na okolicę - a co najważniejsze, NIEZAGROŻONYM widokiem na duży teren zieleni, zapraszam Cię do spokojnego i zielonego miejsca gdzie może powstać Twój wymarzony dom!
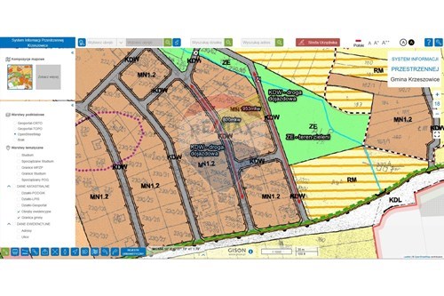
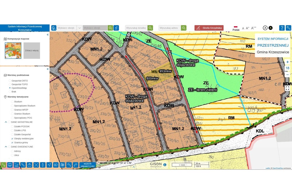
W sprzedaży są 2 działki, zaznaczone kolorami na zdjęciu.
Aktualna oferta dotyczy działki 800mkw.
Druga działka o powierzchni 953mkw jest w cenie 175 000 zł.
PODSTAWOWE INFORMACJE
Lokalizacja: Siedlec, gmina Krzeszowice
Numer działki: 230/114
Powierzchnia działki: 0,0800 HA (800m2)
Dojazd: droga gminna + udział w działkach drogowych
Wymiary działki: 30 x 25 x 30 x 28m
Media/infrastruktura techniczna:
Wodociąg - w drodze 55m
Gaz - w drodze 80m
Prąd - drodze 80m
Aktualnie na sąsiednich działkach realizowana jest budowa domu jednorodzinnego, dzięki czemu wspólnie można wziąć udział w potencjalnych kosztach (np. budowa drogi dojazdowej lub doprowadzenia mediów).
Miejscowy plan zagospodarowania przestrzennego
1. MN 1.2 - Teren zabudowy mieszkaniowej jednorodzinnej
Przeznaczenie podstawowe: zabudowa jednorodzinna w układnie wolnostojącym i bliźniaczym
Przeznaczenie dopuszczalne: obiekty usług wolnostojących bądź usługi wbudowane w obiekty przeznaczenia podstawowego, wolnostojąca zabudowa zamieszkania zbiorowego.
Zakazy: zabudowa szeregowa i grupowa.
PARAMETRY MPZP:
Powierzchnia zabudowy: 35%
Teren czynny biologicznie: 40%
Wysokość zabudowy: 9m
Wysokość budynków gospodarczych: 6m
Intensywność zabudowy: brak
OKOLICA:
Jest to miejsce dla osób ceniących sobie zieleń, spokój i okoliczną naturę. Na wypady rodzinne czy też spacery mamy tutaj mnóstwo możliwości!
Dolina Kobylańska, Park Krajobrazowy Dolinki Krakowskie, Dolina Będkowska, Dolina Racławki, Dolina Szklarki, Jaskinia Żarska, Wąwóz Zbrza czy też las Żary - to wszystko mamy w najbliższej okolicy!
W miejscowości mamy podstawową infrastrukturę, natomiast wszystko (w tym szkoły, przedszkola, sklepy wielkopowierzchniowe) znajdziemy w miejscowości obok - zaledwie 6min samochodem trwa dojazd do Krzeszowic.
Dodatkowo z Krzeszowic istnieje możliwość dojazdu pociągiem do centrum Krakowa w zaledwie 15minut!
ATUTY DZIAŁKI
1. Działka z niezagrożonym widokiem - brak sąsiadów przed domem!
2. Działka kształtna - z racji szerokości i długości mamy pełną swobodę budowy
3. Sąsiednie inwestycje - dzięki budowie domów jednorodzinnych obok działki dojazd i media nie będą problemem
4. Miejscowy plan zagospodarowania - jasna sytuacja budowlana
5. Działka w sąsiedztwie natury - dużo spokoju, ciszy a w odległości 6minut mamy pełną infrastrukturę!
ODLEGŁOŚCI (SAMOCHODEM):
1. Krzeszowice - 4km (6min)
- a w tym wszelka infrastruktura: stacja kolejowa, stacja paliw, biedronka, bricomarche, kościół, policja, sklepy, przedszkole, lekarz, mechanik, straż pożarna, szkoła podstawowa, liceum i wiele innych
2. Kraków (centrum - rynek główny) - 26km (40min)
3. Kraków (obrzeża - Bronowice) - 19km (23min)
4. Dubie - 1,5km (2min)
5. Dolina Kobylańska - 10km (14min)
6. Dolina Racławki - 4km (6min)
7. Kwiaciarnia 800m (1min)
8. Lokalny sklep spożywczy - 700m (1min)
9. Restauracja - 1km (2min)
Miejsce idealne pod dom jednorodzinny, w otoczeniu ciszy, spokoju i zieleni z niezagrożonym widokiem a zarazem z dobrym dojazdem do większej aglomeracji i z podstawowymi obiektami. Ogromnym atutem jest również możliwość dojeżdżania do ścisłego centrum Krakowa pociągiem z miejscowości Krzeszowice dzięki czemu w centrum miasta znajdziesz się w ciągu 15 minut!
Zapraszam do kontaktu oraz prezentacji.
Pośredników zapraszam do współpracy.
Wynagrodzenie biura pokrywa tylko właściciel nieruchomości.