Dom idealny dla dwóch rodzin lub Inwestora.
Przedstawiamy ofertę sprzedaży przestronnego i solidnie wykonanego domu o powierzchni użytkowej 220 m², usytuowanego na działce o powierzchni 1061 m² w atrakcyjnej lokalizacji – blisko centrum Będzina. Działka jest płaska, w kształcie trapezu, z bezpośrednim dostępem do asfaltowej drogi publicznej. Cały teren jest ogrodzony, co zwiększa poczucie prywatności i bezpieczeństwa.
Budynek został wzniesiony metodą tradycyjną z pustaka i cegły, co zapewnia trwałość konstrukcji. W 1998 roku przeprowadzono nadbudowę, która znacząco zwiększyła powierzchnię użytkową oraz funkcjonalność obiektu. Dach pokryto papą. Dom posiada dwa niezależne wejścia, dzięki czemu doskonale sprawdzi się jako dom dla dwóch rodzin lub jako nieruchomość z potencjałem inwestycyjnym – idealna pod działalność usługową, biurową czy gabinet. Pomieszczenia są przestronne, z wysokością wynoszącą 2,8 m, co wpływa na komfort użytkowania i poczucie przestrzeni.
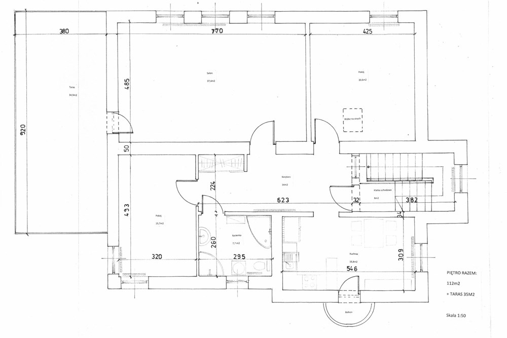
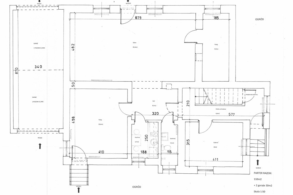
Rozkład pomieszczeń:
Parter:
- kuchnia,
- łazienka,
- salon,
- 3 pokoje.
Piętro:
- kuchnia,
- łazienka,
- salon,
- 2 sypialnie.
Budynek wyposażony jest w okna PCV oraz aluminiowe. Ogrzewanie zapewnia piec na olej opałowy, a ciepła woda użytkowa pochodzi z bojlera. Nieruchomość jest podłączona do prądu, siły oraz kanalizacji miejskiej, co gwarantuje pełen komfort użytkowania.
Do dyspozycji przyszłych właścicieli jest również balkon i taras o łącznej powierzchni 40 m² oraz dwa garaże jednostanowiskowe, które zapewniają wygodne miejsce do parkowania i przechowywania. Budynek posiada podpiwniczenie o powierzchni aż 100 m².
Większość wyposażenia (meble stałe, m.in. zabudowa kuchenna) wchodzi w cenę nieruchomości, co stanowi dużą oszczędność na etapie wprowadzania się. Dodatkowym atutem jest bardzo dobra komunikacja z centrum miasta i innymi dzielnicami – w pobliżu znajdują się przystanki komunikacji miejskiej, sklepy, szkoły i punkty usługowe.
Nieruchomość położona jest na terenie objętym Miejscowym Planem Zagospodarowania Przestrzennego, który dopuszcza zabudowę mieszkaniową jednorodzinną lub usługową, co daje szerokie możliwości adaptacji tej nieruchomości do indywidualnych potrzeb.
Zainteresowała Cię ta oferta?
Skontaktuj się z nami i poznaj wszystkie możliwości, jakie daje ten wyjątkowy dom!
Kupujący nie ponosi kosztów pośrednictwa RE/MAX!