![]()
"Przemysłówka Office" to 30 lokali biurowych zlokalizowanych blisko centrum Koszalina.
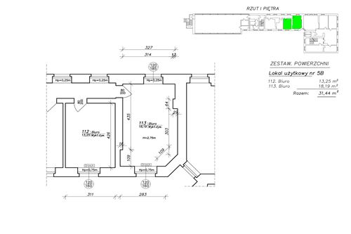
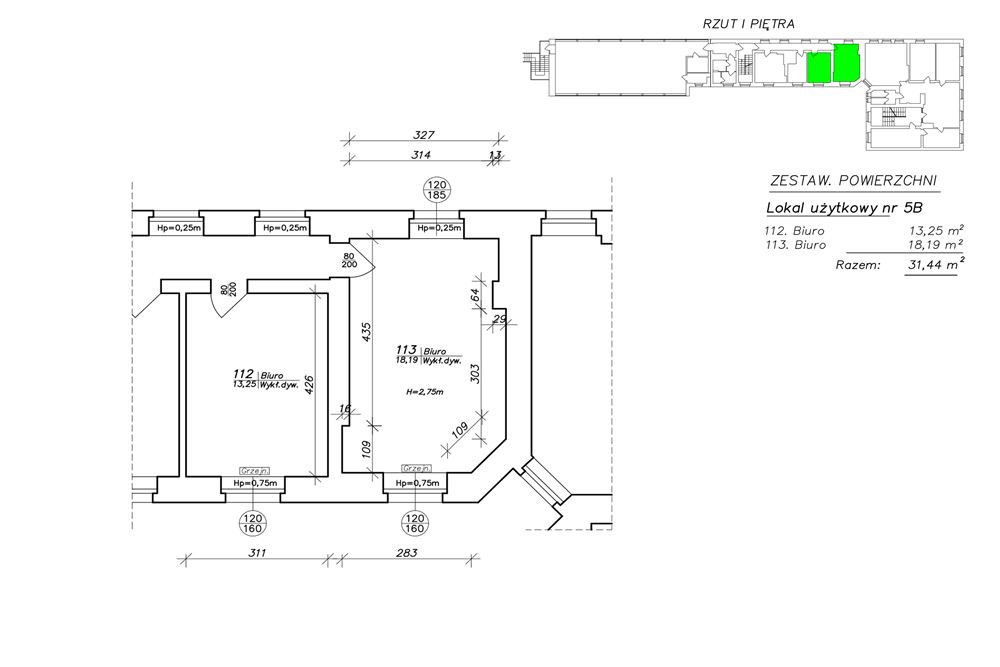
Zapraszamy do zapoznania się z naszą ofertą sprzedaży lokali biurowych w wyjątkowej inwestycji "Przemysłówka Office". Budynek, który w 2021 roku przeszedł kapitalny remont, mieści się w samym sercu Koszalina, przy ul. Zwycięstwa 115, i oferuje przestrzenie biurowe o zróżnicowanych metrażach od 14 m² do 150 m² w atrakcyjnych cenach już od 89 000 zł. Lokal nr 5B, położony jest na pierwszym piętrze budynku od strony ul. Głowackiego i składa się z 2 pomieszczeń biurowych o łącznej powierzchni 31,44 m2. Cena lokalu wynosi 219.000 zł. netto + (23% VAT).
Nowoczesna infrastruktura w dogodnej lokalizacji
Przemysłówka Office to pięciokondygnacyjny budynek o łącznej powierzchni użytkowej blisko 1 200 m², stworzony z myślą o komforcie i funkcjonalności. Budynek został wyposażony w Światłowód, który zapewnia szybkie łącze Internetowe. Dużym atutem jest łatwy dojazd zarówno samochodem, jak i komunikacją miejską (przystanki MZK mieszczą się po obu stronach ul. Zwycięstwa zaraz przy budynku).
Wartością dodaną inwestycji jest również możliwość zakupu lokalu z aktualnym najemcą! Nabywając lokal otrzymujesz dochód z najmu już od pierwszego dnia. Możesz kontynuować współpracę z obecnym najemcą lub wykorzystać lokal na potrzeby własnej działalności.
Dostępnych jest 9 miejsc parkingowych w cenie 19 000 zł netto każde.
Przestrzenie gotowe do użytkowania
W naszej ofercie znajdują się zarówno lokale jedno-, jak i wielogabinetowe. Wszystkie biura zostały starannie wyremontowane, są nowocześnie zaaranżowane i w pełni wyposażone w odpowiednią infrastrukturę. W budynku dostępne są:
- Wspólne zaplecze socjalne na każdym piętrze,
- Szybki Internet światłowodowy,
- Ochrona oraz serwis sprzątający.
Koszalin dynamicznie rozwijający się ośrodek biznesowy, będący drugim największym miastem województwa zachodniopomorskiego, to ważne centrum gospodarcze, naukowe i kulturalne. Miasto posiada doskonałe połączenia komunikacyjne:
- Międzynarodową trasę E-28 (Berlin-Kaliningrad),
- Drogę ekspresową S11, łączącą północ z południem Polski,
- Drogę ekspresową S6, łączącą Szczecin z Trójmiastem.
Zainwestuj w przyszłość swojego biznesu
Jeśli szukasz idealnego miejsca na swoją działalność w dynamicznie rozwijającym się mieście, Przemysłówka Office to odpowiedź na Twoje potrzeby.
Skontaktuj się z nami już dziś!
Z przyjemnością odpowiemy na wszystkie pytania dotyczące zakupu lokalu biurowego.
Zainwestuj w swoje biuro w sercu Koszalina i korzystaj z wygody oraz prestiżu tej wyjątkowej lokalizacji!